Get a Free Quote (416) 474-9856
GTA PERMITS
(416) 474-9856GET A FREE QUOTE

Hundreds of Permits. Across 35+ Ontario Municipalities. Here Is What That Looks Like.

From basement apartments in Mississauga to full additions in Toronto and custom builds in Kleinburg — every project on this page went from consultation to approved permit through our team.

What You Are Looking At

This is not a portfolio of renderings. It is a record of permits that were applied for, examined, revised where needed, and issued. Every project on this page went through the full municipal process — zoning verification, permit drawings, submission, examiner comments, revisions, and approval.

The projects span multiple municipalities, multiple project types, and multiple levels of complexity. They represent the breadth of what we do and the consistency with which we deliver.

35+
Ontario Municipalities
500+
Permits Issued
8+
Project Types
Project Type:
Municipality:
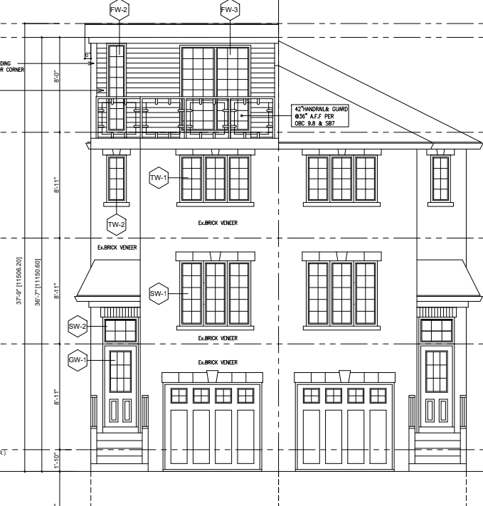
Bungalow to two-storey conversion with attached garage
Addition Toronto

Bungalow to Two-Storey — Intergenerational Family Home

Toronto, ON
Vertical addition · Attached garage · Minor variance · Committee of Adjustment

The Challenge

This project involved the intergenerational transfer of a family home — transforming a detached bungalow into a two-storey residence with an attached garage. Despite staying within the existing footprint, updated zoning bylaws triggered a minor variance application, adding complexity to the approvals process.

What We Did

We navigated the minor variance process on behalf of our client, preparing all documentation and securing approval. From there, we completed the full vertical addition and integrated the attached garage, keeping the design cohesive with the existing structure.

The Result

A spacious, modern home built on a property the family had always called their own. Despite the regulatory hurdles, the project was completed successfully — giving the next generation a home that is both functionally suited to their needs and deeply rooted in family history.

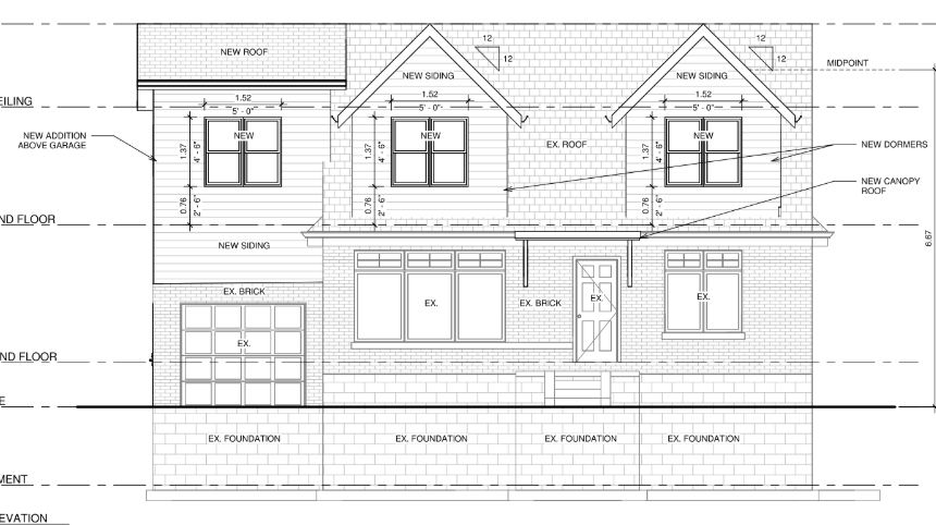
Four-storey addition with dual home office suites
Addition Toronto

Fourth-Storey Addition — Part 3 Code Compliance

Toronto, ON
Fourth-storey addition · Part 3 compliance · Structural engineering · Home office suites

The Challenge

A growing family needed a fourth storey on their three-storey home to accommodate two work-from-home parents. The addition triggered a transition from Part 9 to Part 3 of the Ontario Building Code — introducing significantly more complex structural, fire safety, and life safety requirements.

What We Did

We led the Part 3 compliance process from end to end, coordinating with the engineering team on structural, egress, and fire separation requirements. The fourth storey was designed with two acoustically separated home office suites that maintain the architectural integrity of the existing home.

The Result

A home that met all Part 3 requirements while truly delivering for the family. Both parents now have purpose-built workspaces entirely separate from the living areas — in a home that is as functional as it is future-ready.

Legal owner-occupied triplex with roof deck conversion
Conversion Toronto

Single-Family to Legal Triplex with Roof Deck

Toronto, ON
Triplex conversion · Roof deck · Committee of Adjustment · Community consultation

The Challenge

The owner sought to convert a single-family home into a legal owner-occupied triplex with a roof deck. Securing neighbour support before the Committee of Adjustment hearing was critical — any opposition risked delaying or derailing the application. Each unit also had to meet minimum code requirements while remaining genuinely livable.

What We Did

We managed community consultation proactively, engaging neighbouring property owners early to address concerns and build support. In parallel, we developed a unit layout strategy that maximised square footage across all three floors, meeting OBC requirements for ceiling height, egress, natural light, and minimum room dimensions. The roof deck was integrated as a compliant amenity space.

The Result

The application was approved with neighbour support secured ahead of the hearing — no delays, no surprises. Three fully code-compliant units, each thoughtfully designed as a comfortable self-contained home, with the owner benefiting from an income-generating property.

Ravine addition with TRCA approval and dual variance
Addition Toronto

Ravine Lot Addition — TRCA & Dual Variance Approval

Toronto, ON
Rear addition · TRCA coordination · Committee of Adjustment · Two simultaneous variances

The Challenge

A growing family in a townhouse needed more space, but the property backed directly onto a ravine — bringing TRCA oversight into the approvals process. The tight lot also meant the proposed addition exceeded both permitted gross floor area and height thresholds, requiring a Committee of Adjustment application for two variances simultaneously.

What We Did

We coordinated closely with the TRCA to design the addition within their setback and environmental impact requirements. The Committee of Adjustment application was built on a strong planning rationale demonstrating that both variances were minor, desirable, and consistent with neighbourhood character. Every design decision balanced regulatory compliance with maximising functional living space.

The Result

Both variances were approved and TRCA clearance was obtained. The completed addition gave the family the space they needed — thoughtfully designed rooms that work for how they actually live, delivered despite one of the more complex lot conditions we have encountered.

Small home maximised within zoning envelope no variance required
Renovation Toronto

Small Home Redesign — Maximised Within Zoning, No Variance

Toronto, ON
Full interior redesign · Zoning analysis · Space optimisation · No Committee of Adjustment

The Challenge

A small Toronto home required a complete redesign. The owner wanted every possible square foot extracted from a limited footprint — without triggering a Committee of Adjustment application. The design had to push the permitted envelope as far as possible while staying strictly within zoning bylaw parameters.

What We Did

We undertook a detailed zoning analysis from the outset, using the bylaw as a design framework rather than a constraint. Every square foot was interrogated — ceiling heights, room proportions, circulation space, and built-in storage were all optimised to make the home feel spacious despite its footprint.

The Result

A home that feels significantly larger than its footprint suggests, with a smart layout that meets the family’s needs without compromise. By designing within the zoning bylaw from day one, the project avoided Committee of Adjustment entirely — keeping the timeline on track and the budget protected.

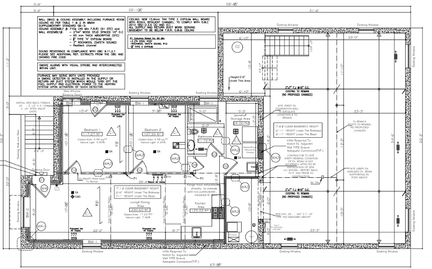
Legal basement apartment with partially unpermitted existing conditions
Basement Suite Toronto

Legal Basement Apartment — Reconciling Unpermitted Existing Work

Toronto, ON
Basement conversion · As-built assessment · Code compliance · Unpermitted work resolution

The Challenge

The goal was a legal basement apartment — but a portion of the space had already been finished without permits. Existing ceiling heights, window sizing, egress, and mechanical layouts didn’t necessarily meet current Ontario Building Code requirements. Finding a compliance package that reconciled the finished area with new work, without a complete overhaul, became the central challenge.

What We Did

We carried out a detailed as-built assessment of the previously finished area, identifying what could be retained, what required modification, and where new work was needed. The compliance package addressed both portions of the basement cohesively, ensuring the final unit met all Part 9 occupancy requirements. Early engagement with the building department confirmed the approach before any work began.

The Result

A fully permitted, legal basement apartment — despite the added complexity of reconciling partially finished, unpermitted conditions with current code. By addressing both portions together, we minimised unnecessary remediation while delivering a safe, functional, and compliant unit.

Detached garage in Metrolinx development corridor
New Construction Toronto

Detached Garage — Metrolinx Corridor Permit Secured

Toronto, ON
Detached garage · Metrolinx transit permit · Zoning compliance · As-of-right approval

The Challenge

A straightforward garage build became more complex when the property was identified as falling within a Metrolinx development corridor — triggering an unexpected transit permit requirement. With the homeowner eager to break ground quickly, there was no room for delays, making precise zoning compliance essential to avoid a Committee of Adjustment application.

What We Did

We initiated the Metrolinx permit process immediately upon identifying the corridor designation, engaging directly with Metrolinx while simultaneously finalising a garage design that satisfied all municipal setback, height, and lot coverage requirements. Both approval streams were managed concurrently to protect the homeowner’s timeline.

The Result

The transit permit was secured and the garage was approved as-of-right — no Committee of Adjustment required. The project was delivered on the homeowner’s accelerated schedule, a result that hinged entirely on identifying the corridor designation early and acting without delay.

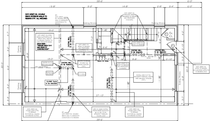
Open concept main floor renovation with hidden structural issue discovered
Renovation Toronto

Open-Concept Renovation — Hidden Structural Issue Resolved

Toronto, ON
Interior renovation · Load-bearing wall removal · Structural engineering · Unpermitted existing work

The Challenge

A century-old Toronto home was being opened into a modern open-concept layout when the contractor discovered that a central load-bearing wall had been previously modified without permits — with an undersized beam carrying a load it was never engineered to handle. Work halted immediately, requiring a full structural reassessment before the project could continue.

What We Did

We brought in a structural engineer to assess existing conditions and design a proper replacement beam sized for the full load above. The scope was revised to include removal of the compromised assembly and installation of an engineered solution meeting current code. Revised structural drawings were submitted and approved before work resumed.

The Result

The main floor was opened into the bright, functional space the owners had envisioned. More importantly, a hidden structural issue that had gone undetected for years was identified and resolved properly — leaving the family with a home that is not only more beautiful, but significantly safer.

Ravine addition rescued from failed permit application
Addition Toronto

Ravine Addition — Rescued from a Failed Application

Toronto, ON
Rear addition · TRCA coordination · Geotechnical engineering · Failed application recovery

The Challenge

The homeowner had already retained another permit company for a ravine rear addition — but that company walked away mid-process, leaving an incomplete application, a frustrated conservation authority, and a sloped rear yard that made structural design considerably more complex. By the time we were brought in, months had been lost and the homeowner’s confidence in the process was understandably shaken.

What We Did

We started from the ground up — reviewing everything previously submitted, identifying where the application had fallen short of TRCA requirements, and rebuilding the submission with the rigour it needed. The sloped rear yard required geotechnical engineering to address grade changes and soil conditions near the ravine edge. We reengaged the TRCA directly, rebuilt the relationship, and guided the application through to clearance.

The Result

TRCA clearance was obtained and the building permit was approved — a result the homeowner had begun to doubt was possible. The project that had stalled under a previous team was completed successfully. For the homeowner, it was not just a renovation — it was a hard-won finish line.

What Our Clients Say About the Work

★★★★★

“We are adding a second floor with a complete renovation to the main floor and basement. Greg and his team are wonderful to work with. They helped us in all aspects of design, including representing us with the Committee of Adjustment. I can with all assurance recommend them to anyone.”

James G.
Homeowner — Second Floor Addition & CoA
★★★★★

“I interviewed several firms before selecting GTA Permits. Our plans required CoA approval for several minor variances — all approved without conditions. Listening to Greg address the committee, well prepared with research and arguments, only confirmed that Greg is a true master at what he does.”

Paul
Homeowner — Fourth Floor Addition & CoA
★★★★★

“GTA Permits team were amazing. They were there for us when we had to file not only the permits for our pool but a variance that no one knew about. They showed up multiple times to speak to us and the pool company. We would highly recommend and use them over and over again.”

Google H.
Homeowner — Pool Permit & Variance

Your Project Could Be Next

Every project on this page started with a phone call. Tell us what you are building, where the property is, and we will tell you what it takes to get it permitted.